Extension d'un bâtiment industriel
Moulinex à Fresnay sur Sarthe (72130)
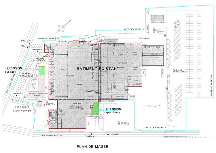
L'augmentation du nombre des personnes dans le bureau d’étude Moulinex à Fresnay sur Sarthe a nécessité l'intervention de l'architecte pour construire des bureaux supplémentaires (extension de l’existant).
L'extension désigne un bâtiment modulaire conçu sur un simple rez-de-chaussée. Cette construction métallique intègre un bardage en acier sur les façades. L’extension est prévue sur 12 m de long et sur toute la largeur des bureaux existants.
Une autre extension est prévue au milieu de la façade sud-est du complexe. Il s’agit d’un espace dédié aux expéditions avec les quais à ramener et à aligner sur les quais de réception.
La façade est traitée en bardage acier de couleur beige identique à l’existant. Un auvent au dessus des quais abrite la décharge des marchandises.
- Accueil Agence d'architecture
- Bienvenue
- Projets / Créer
- Projets / Construire
- Projets / Rénover
- Projets / Agrandir
- / Extension bois
- / Bureaux
- / Extension moderne
- / Agrandissement
- / Extension bois
- / Bâtiment industriel
- / Agrandissement bois
- / Studios
- / Loft
- / Extension en pierres
- / Cité Internationale
- / Centre commercial
- / Extension habitation
- / Salle polyvalente
- / Extensions de maisons
- Agence d'architecture
- Missions d'architecte
- Contact
